

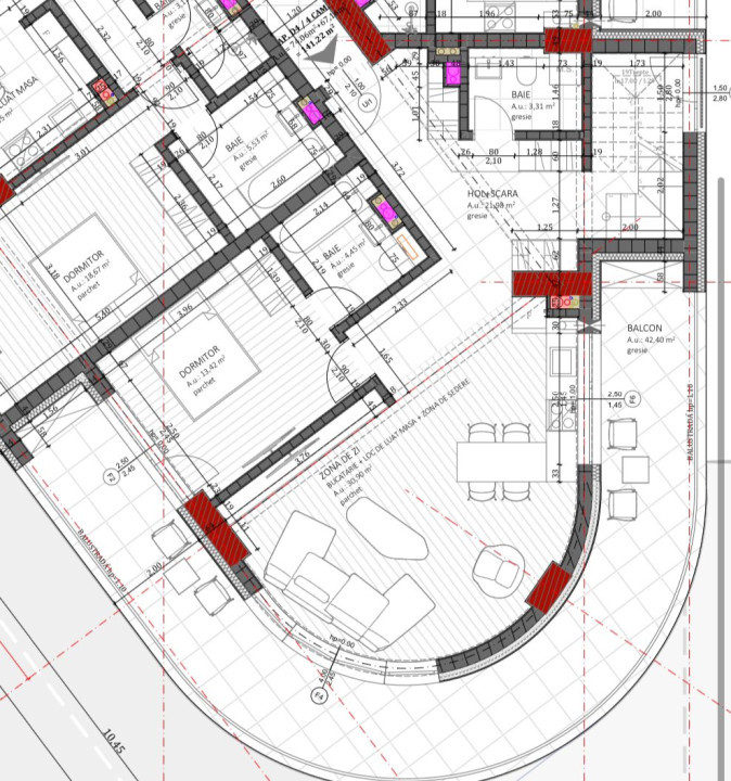
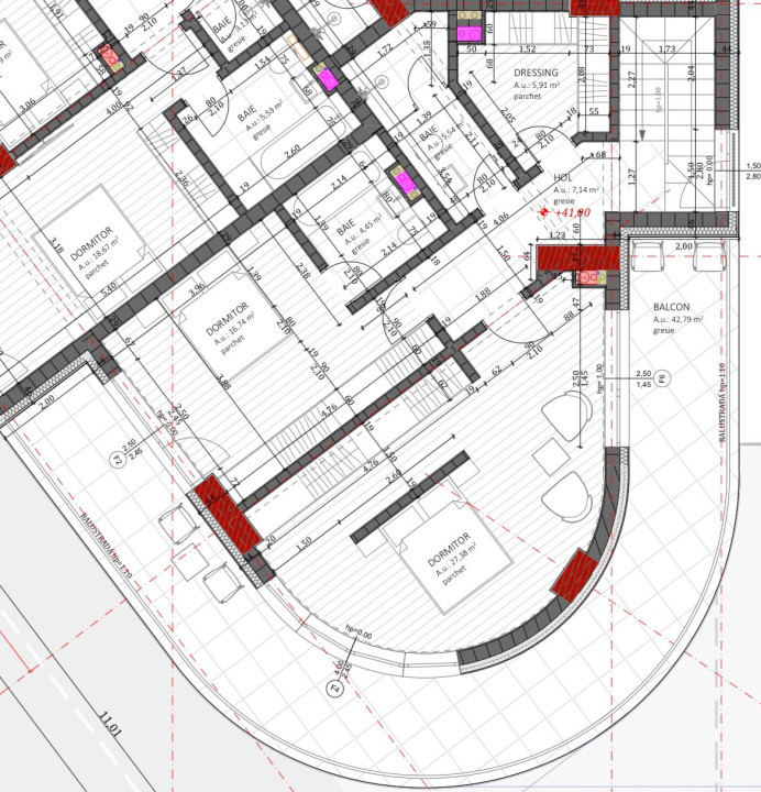
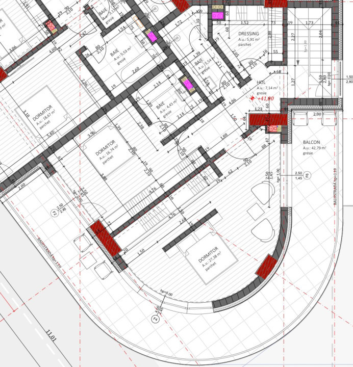
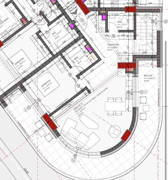
Va propunem spre vanzare penthouse pe doua nivele cu acces pe scara interioara cu suprafata utila de 141 mp situat in zona Vivo. Compartimentarea este semidecomandata si se prezinta astfel: -primul nivel: hol, living+bucatarie, un dormitor, baie si o terasa cu suprafata de 42,40 mp. -al doilea nivel: hol, 2 dormitoare, 2 bai, 1 spalatorie,1 terasa cu suprafata de 42,79 mp. Dispune de incalzire in pardosea. Se preda la stadiul de semifinisat. Pretul apartamentului este + TVA de 19%, iar tersa 300 euro /mp fara TVA. Pentru mai multe detalii, nu ezitati sa ne contactati! ID Extern: P5044