
Va propunem spre vanzare apartament spatios și luminos cu 4 camere in zona Avram Iancu.
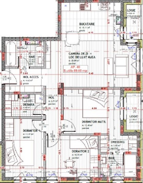
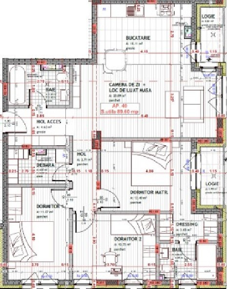
Este pozitionat la parterul unui bloc cu regimul de inaltime S+P+6E+1 ER, termenul de finalizare fiind in iulie 2024 iar CF-urile in septembrie 2024.
Compartimentarea este semidecomandata, suprafata utila este de 89.60 mp si se prezinta astfel: 1 hol, 2 bai, 1 bucatarie open space cu living, 3 dormitoare, 1 dressing, 1 debara si 2 balcoane de 7 mp.
Proiectul dispune de apartamente cu 1, 2, 3 si 4 camere care se vor preda semifinisate, cu sapa autonivelanta, doua randuri de glet, usa metalica la intrare, ferestre termopan cu 7 camere, instalatii trase pe pozitie, centrala termica cu incalzire in pardoseala .
La cerere se poate achizitiona loc de parcare subterana la pretul de 6000 euro+TVA sau parcare exterioara la pretul de 4000 euro+TVA.
Pretul apartamentului pentru stadiul de semifinisat este de 1600 euro/mp+Tva de 19%, garajul sau parcarea exterioara fiind cu Tva de 19%.
Pentru stadiul de finisat pretul apartamentului va fi de 1750 euro/mp+TVA de 9%, garajul sau parcarea exterioara fiind cu Tva de 9%.
In aceasta locatie puteti beneficia de Spa, Parc de aprox. 2.000 mp cu verdeata si pomi, Teren, Piscina si Gradinita si multe alte spatii de recreere.
Pentru a programa o vizionare, nu ezitati sa ne contactati! Id extern: P1825