





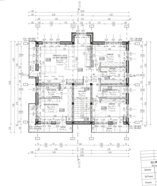
Descoperă un apartament rar întâlnit pe piață – cu 123 mp utili, 4 camere spațioase, 2 băi și 3 balcoane, amplasat într-un bloc cochet, cu doar câte un apartament pe nivel, în inima unei zone de case din Mănăștur.
Situat într-un imobil cu regim redus de înălțime (3 etaje), acest apartament se predă în stadiul de semifinisat, oferindu-ți libertatea de a-l personaliza după propriul gust. Compartimentarea este ideală pentru o familie care caută intimitate și confort, cu spații largi și luminoase în fiecare cameră.
Balcoanele adaugă un plus de aer, lumină și spațiu, iar poziționarea într-o zonă liniștită, cu case, îți oferă intimitatea și liniștea greu de găsit în cartierele aglomerate.
Este o alegere potrivită pentru cei care își doresc un cămin bine gândit, într-o zonă premium, cu acces facil spre oraș dar departe de agitație. Preturile nu includ TVA. Se poate opta si pentru o parcare subterana la pretul de 15000 de euro plus TVA respectiv o boxa de depozitare la pretul de 8000 de euro. Pentru detalii nu ezitati sa ne contactati ID: P10005