








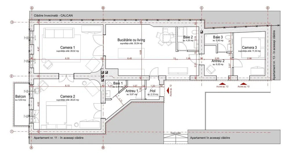
Bling imobiliare va ofera spre inchiriere un apartament cu 4 camere situat în Cluj-Napoca, pe strada Eroilor, în inima orașului. Apartamentul este o bijuterie arhitecturală, situată la etajul 1 (piano nobile) al Casei Mici Bánffy, un mic palat baroc, de la balconul căruia puteți urmări spectacolul urban al orașului. Dintre elementele sale spectaculoase, amintim balconul elegant, spațialitatea încăperilor de la stradă, cu o înălțime de 4,5 metri, tâmplăriile istorice valoroase cu feronerii originale, soba de factură neorenascentistă de sec. XIX, ușa monumentală dintre spațiul de bucătărie și zona de zi.
Apartamentul a fost complet renovat recent, fiind refăcute instalațiile termice (centrală termică proprie, cu rezervor de acumulare, radiatoare pentru încălzire), electrice, sanitare, având montat inclusiv un sistem de supraveghere.
Apartamentul este perfect pentru o locuință specială, un birou generos și reprezentativ sau un spațiu de showroom.
Detalii compartimentare proprietate:
- 1 cameră de zi;
- 1 dormitor cu balcon spre strada Eroilor;
- 1 bucătărie generoasă cu luminator amenajat în tavan care aduce lumină naturală într-o încăpere fără acces la fațadă;
- 1 dormitor;
- 3 băi amenajate;
- 3 holuri.
Pentru mai multe detalii sau pentru vizionare, va rog sa ne contactati! ID Extern: P11450