
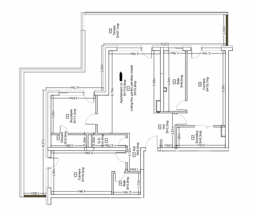
Va prezentam un penthouse de 113mp, pe strada Frunzisului, intr-un ansamblu premium, din cartierul Zorilor.
Acesta se afla la etajul 14 intr-un ansamblu cu regim de inaltime S+P+14E. Compartimentarea este decomandata, avem bucatarie, living, 2 dormitoare, 2 bai, dressing, debara si hol, cu acces din fiecare incapere pe terasa care are in jur de 57mp.
Acesta se vinde la stadiul de semifinisat, incalzire in pardoseala, usa antiefractie, ferestre tripan cu tamplarie de aluminiu.
Accesul este facil atat cu masina cat si cu mijloacele de transport in comun (la 5 minute distanta de bloc) acces controlat si paza 24/7 pentru un plus de siguranta.
Datorita zonei si a imobilului premium in care se afla, acesta se recomanda atat pentru locuinta, cat si pentru investitie.
La pretul afisat se adauga TVA.
Pentru informatii suplimentare, programarea unei vizionari sau pentru a va prezenta oferta noastra completa, va rugam sa ne contactati. ID.EXTREN:P9983