
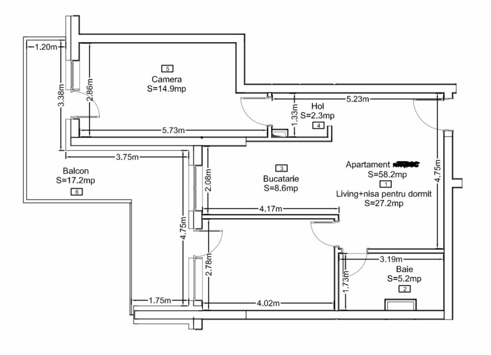
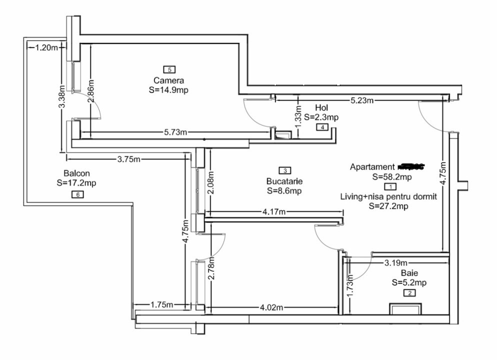
Va prezentam un apartament de 58mp, cu 2 camere semidecomandate + o nisa de dormit , pe strada Frunzisului, intr-un ansamblu premium, din cartierul Zorilor.
Apartamentul se afla la etajul 5 intr-un ansamblu cu regim de inaltime S+P+14E.
Compartimentarea este semidecomandata, cu acces din fiecare incapere pe terasa care are in jur de 17mp.
Acesta se vinde la stadiul de finisat, incalzire in pardoseala, usa antiefractie, ferestre tripan cu tamplarie de aluminiu.
Accesul este facil atat cu masina cat si cu mijloacele de transport in comun (la 5 minute distanta de bloc), priveliste spre oras si padurea Faget, acces controlat si paza 24/7 pentru un plus de siguranta.
Datorita zonei si a imobilului premium in care se afla, acesta se recomanda atat pentru locuinta, cat si pentru investitie.
La pretul afisat se adauga TVA, asadar pretul final cu TVA inclus este de 210.540€.
Pentru informatii suplimentare, programarea unei vizionari sau pentru a va prezenta si alte compartimentari, va rugam sa ne contactati. ID.EXTREN:P9983