
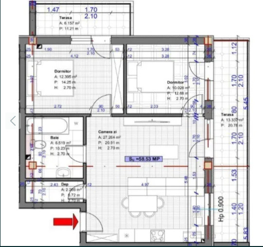
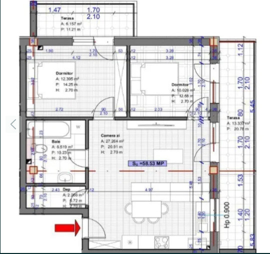
Va propunem spre vanzare un apartament cu 3 camere semidecomandate situat in Floresti zona Terra, intr-o zona linistita,, magazine si alte puncte de interes ale zonei. Apartamentul in suprafata utila de 59 mp este situat la etajul 3 intr-un imobil nou cu 3 etaje si este compus din: hol intrare, living impreuna cu bucataria de tip open-space, 2 dormitoare, baie,debara care se poate transforma in a 2 baie si 1 balcon si 1 terasa. Acesta dispune de centrala termica proprie, incalzire prin pardoseala, ferestre tripan si se vinde la stadiul de semifinisat. Imobilul nu detine parcare. Avand in vedere compartimentarea, suprafata utila si zona in care se afla imobilul, il recomandam atat pentru locuinta proprie cat si pentru investitie. Pentru mai multe detalii sau pentru programarea unei vizionari, nu ezitati sa ne contactati. ID Extern: P11637