





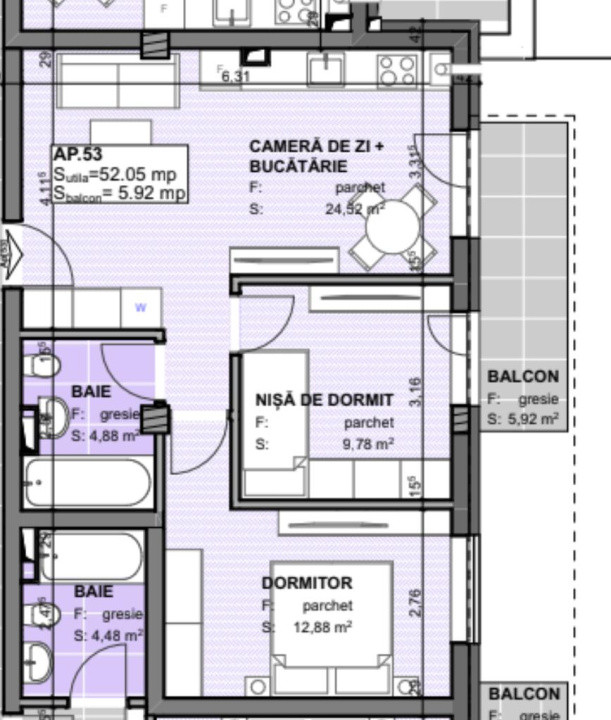
La etajul 3 al unui bloc nou, aflat în construcție, se află un apartament de 3 camere, cu o suprafață de 52 mp și un balcon cochet, care adaugă un plus de spațiu și lumină. Locuința se predă semifinisată și este dotată cu încălzire în pardoseală, oferindu-vă șansa de a o personaliza exact așa cum vă doriți.
Ansamblul rezidențial este gândit pentru confort și siguranță, incluzând un parc de joacă pentru copii și fiind amplasat într-o zonă liniștită, dar totuși aproape de magazine și facilități necesare vieții de zi cu zi.
Pentru mașină, aveți la dispoziție opțiunea de a achiziționa un loc de parcare, fie exterior, fie subteran, în funcție de preferințe.
Pozele prezentate sunt randări, pentru a vă oferi o imagine de ansamblu asupra viitorului cămin. Prețul afișat nu include TVA. ID: P11168