







Te-ai gândit vreodată cum ar fi să ai propriul apartament cu o terasă cât o grădină?
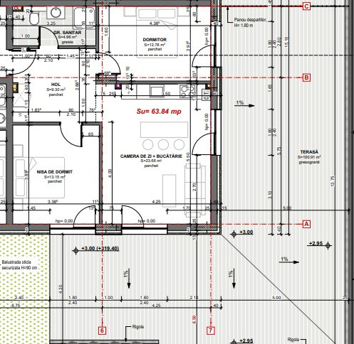
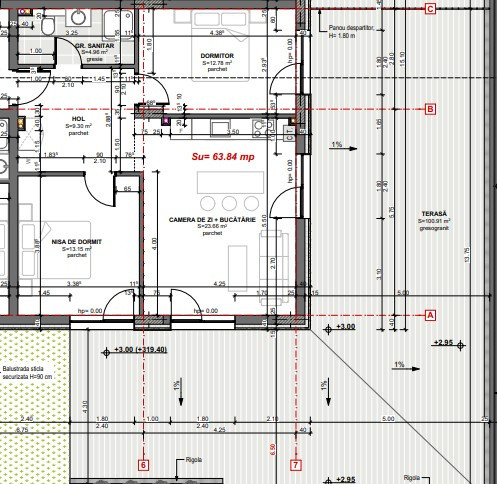
Acest apartament de 3 camere îți oferă exact asta: un spațiu generos, luminos și aerisit, în care să te simți acasă din prima clipă. Are o baie practică, camere bine compartimentate și o terasă de 100 mp – locul perfect pentru cafeaua de dimineață, pentru serile de vară sau chiar pentru a-ți crea un colț verde doar al tău.
Este parțial finisat, ceea ce înseamnă că poți adăuga exact ce îți dorești, fără să plătești finisaje făcute de alții, pe gustul altora.
Un apartament care poate deveni căminul tău sau o investiție inspirată.
Tot ce trebuie să faci este să-l vezi – iar restul va veni de la sine
Posibilitate achiziție parcare subterană (6.000€ + TVA) sau exterioară (4.000€ + TVA). Prețul apartamentului nu include TVA. ID: P10073