






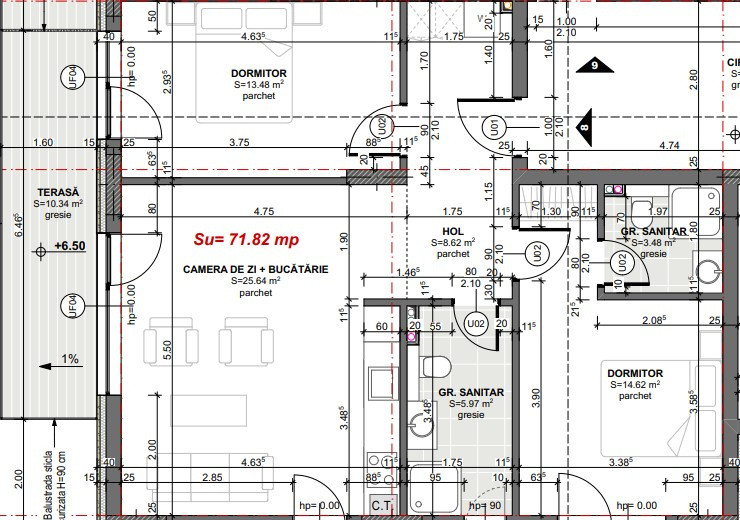
Apartament cu 3 camere, 2 băi și balcon, situat la etajul 1 al unui bloc nou, într-o zonă liniștită din Apahida, ideal pentru familii sau cupluri care caută confort și funcționalitate. Cu o suprafață utilă de 72mp, locuința este compartimentată semidecomandat, oferind un living generos cu bucătărie open space și două dormitoare bine delimitate. Se predă semifinisat: încălzire în pardoseală, centrală termică de bloc cu repartitoare pe apartamente, geamuri termopan tripan, pereți tencuiți și gletuiți, sape turnate, instalații trase pe poziții, balcoane finisate cu gresie antiderapantă. Posibilitate achiziție parcare subterană (6.000€ + TVA) sau exterioară (4.000€ + TVA). Prețul apartamentului nu include TVA. ID: P10067