
































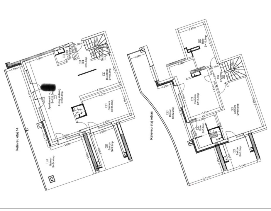
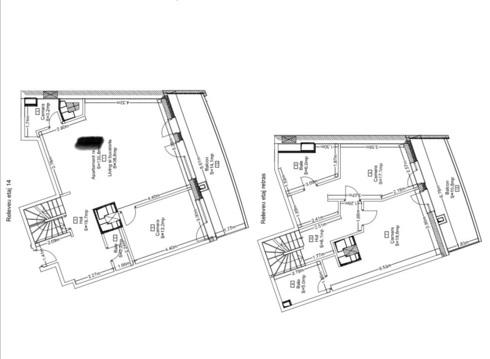
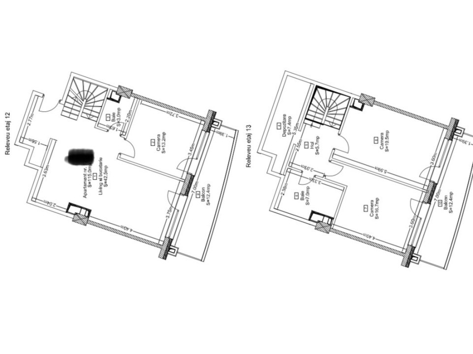
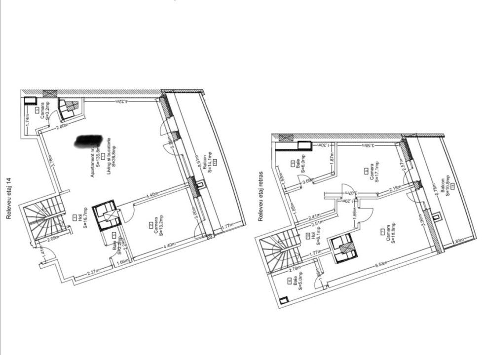
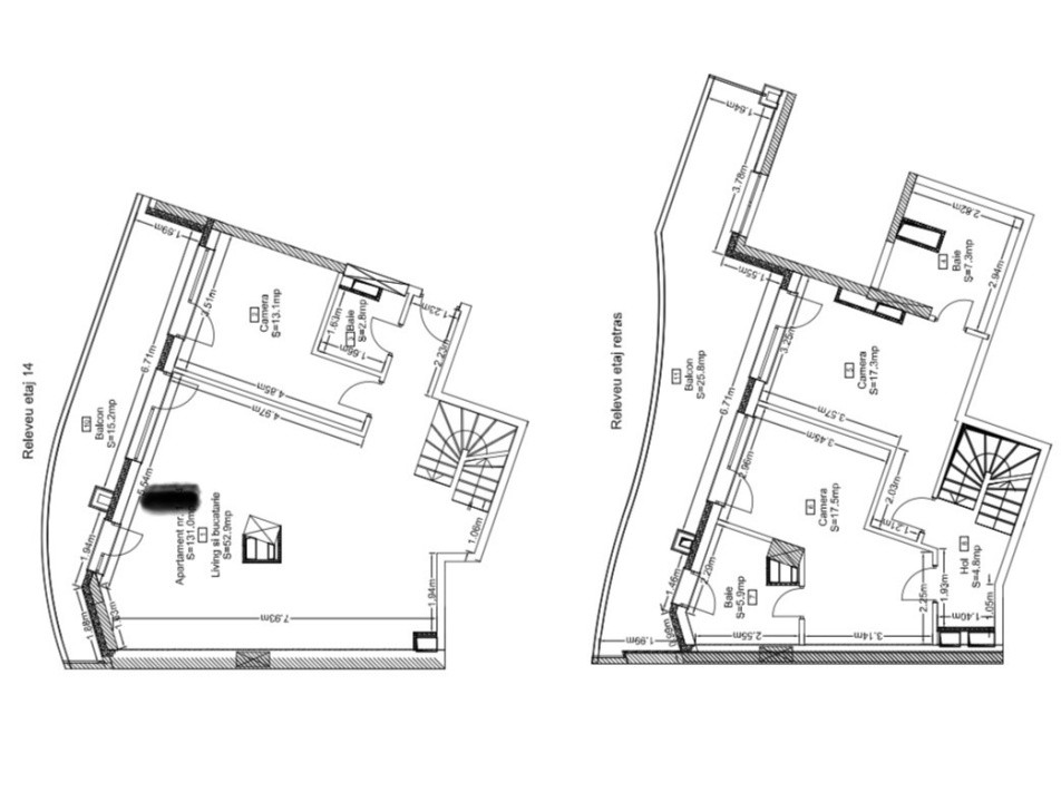
Va prezentam apartamente cu 2-4 camere semidecomandate, pe strada Frunzisului, intr-un anasamblu premium, din cartierul Zorilor.
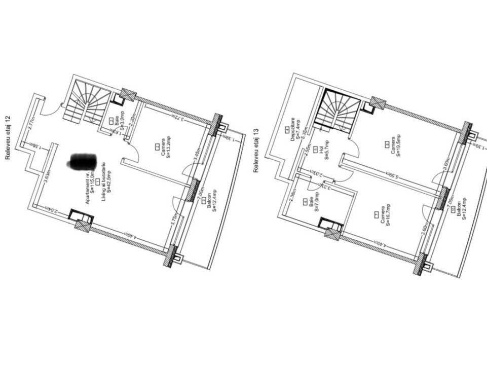
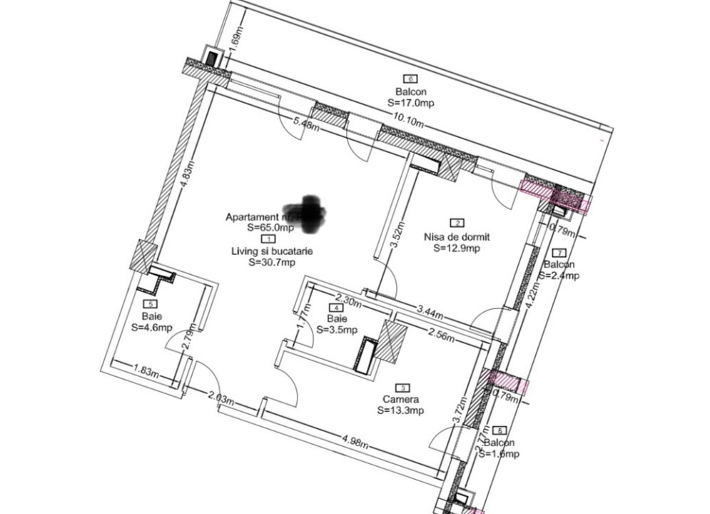
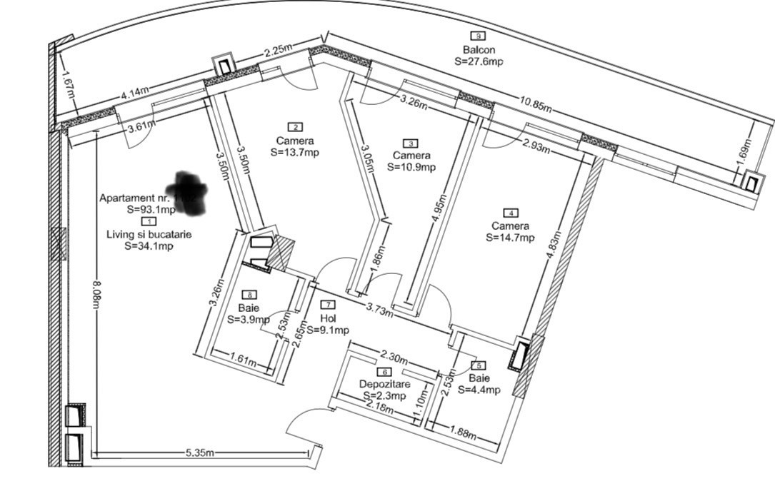
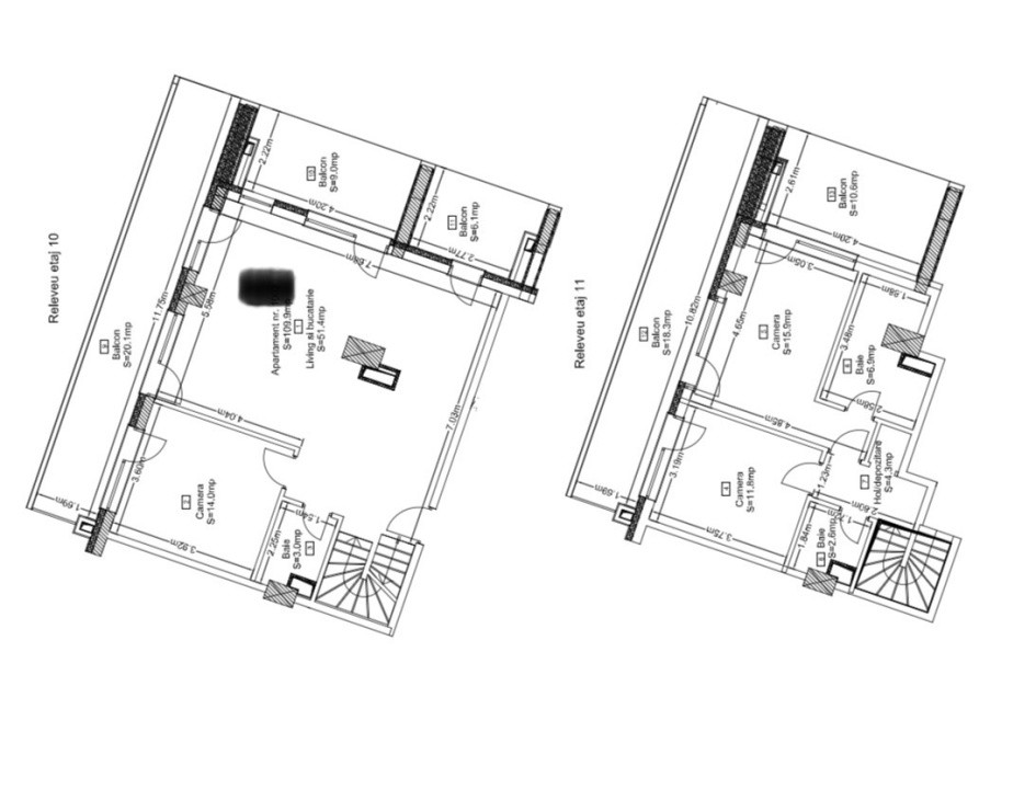
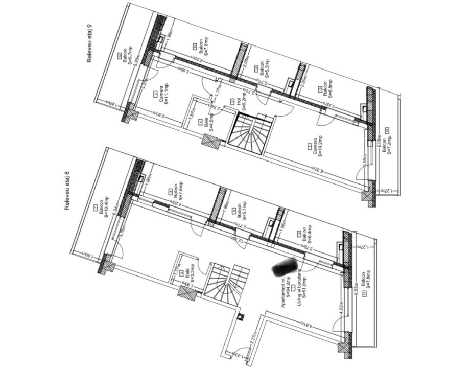
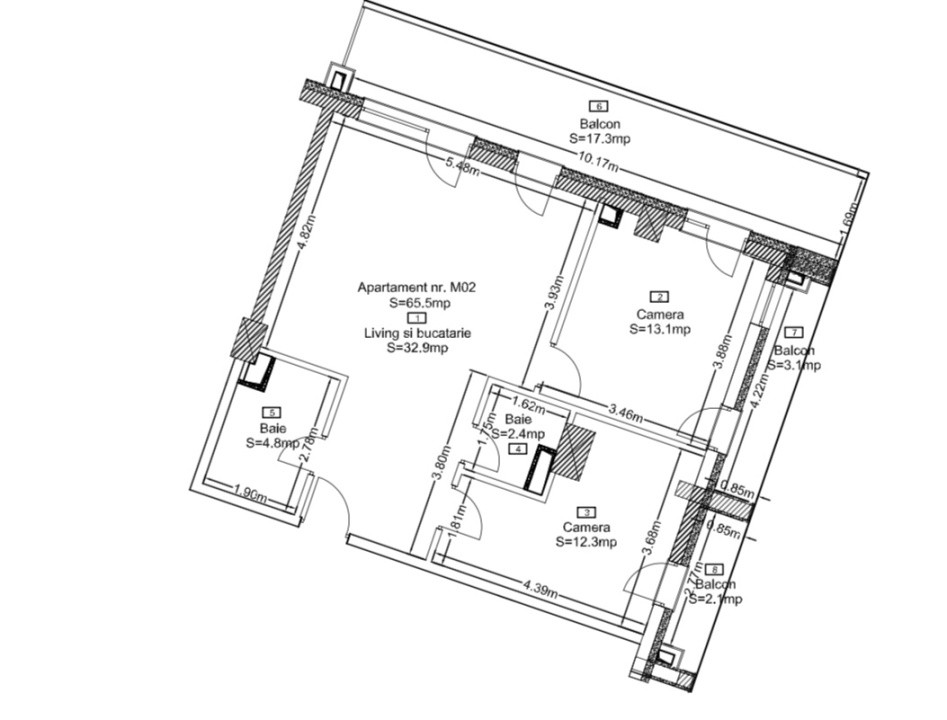
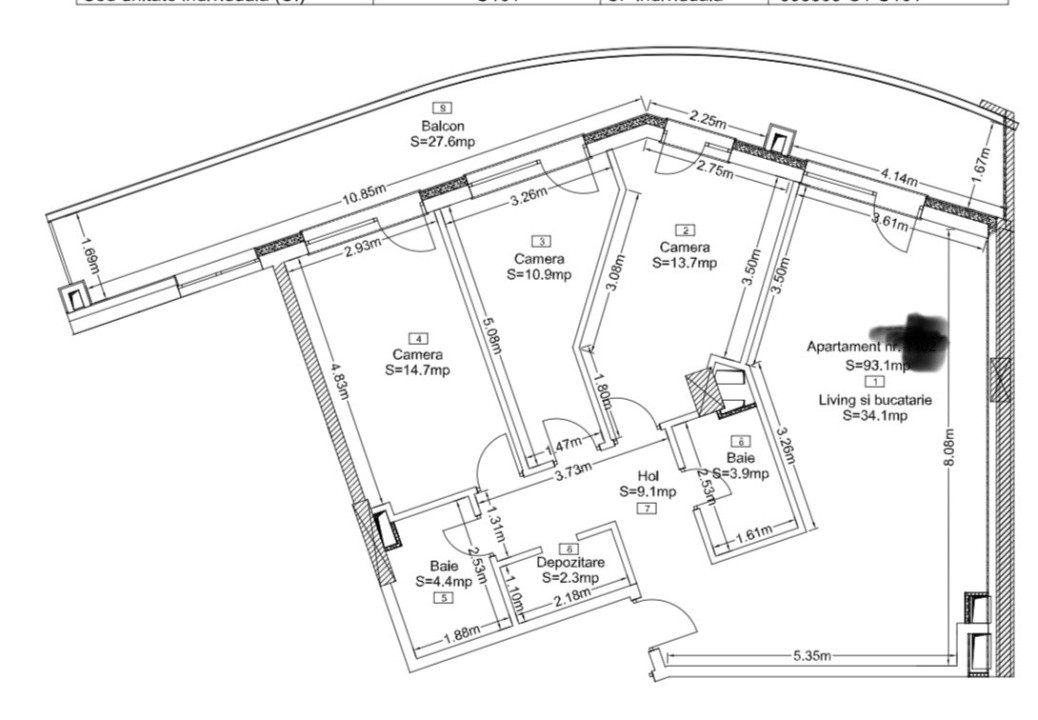
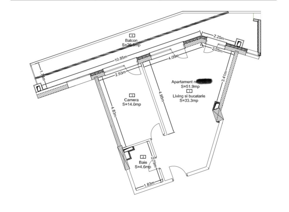
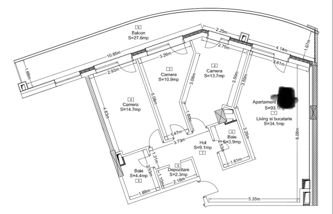
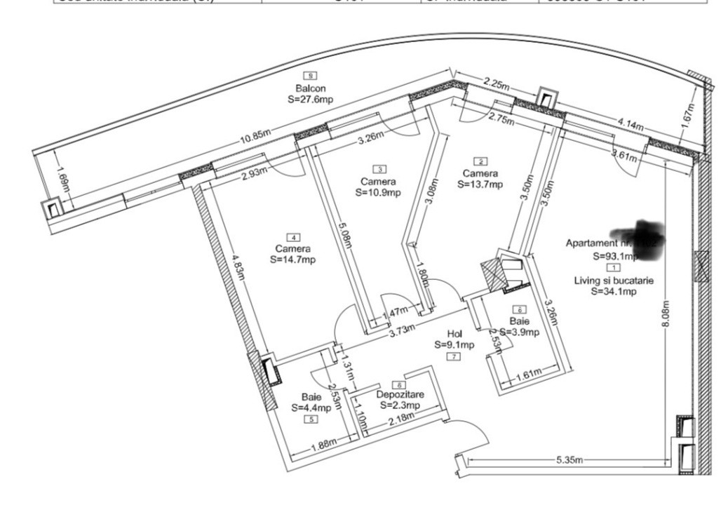
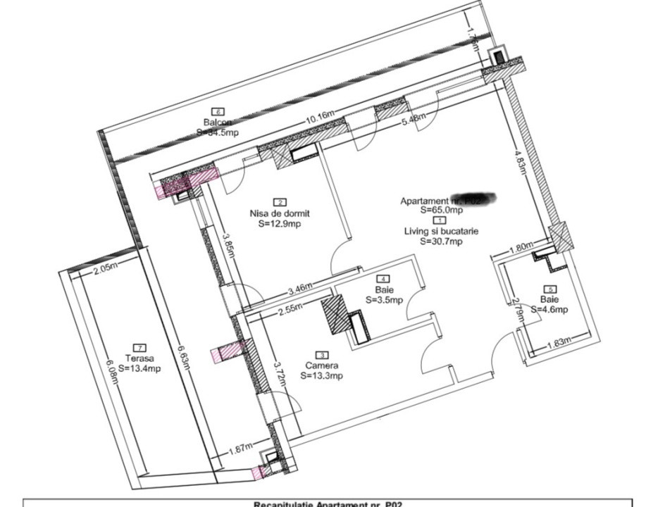
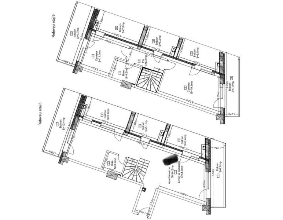
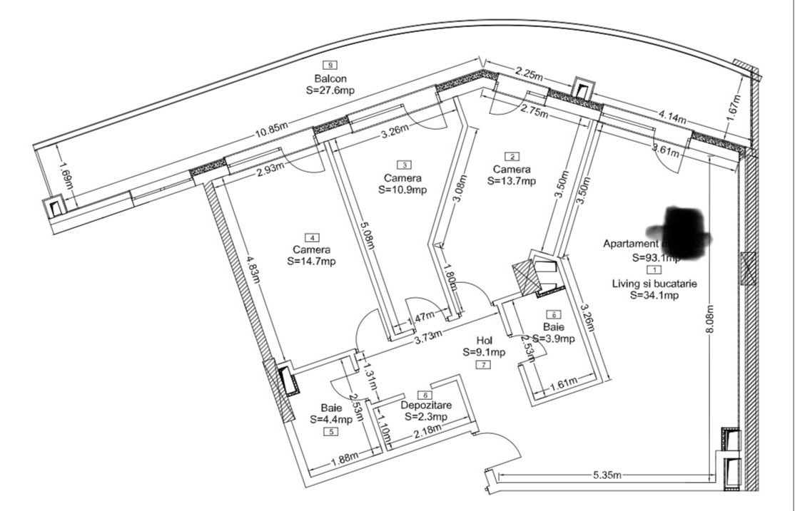
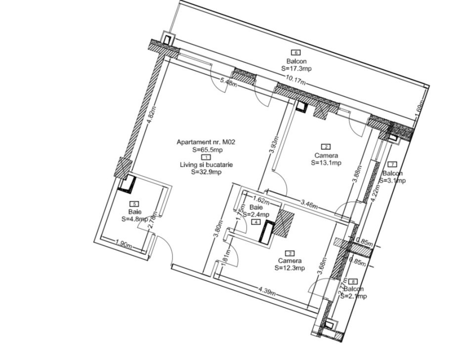
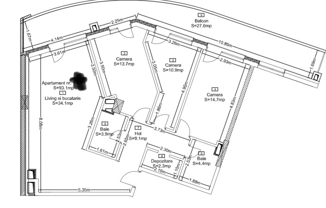
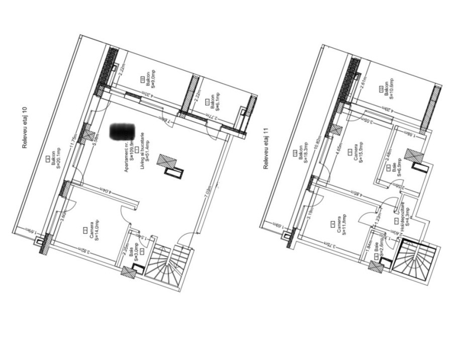
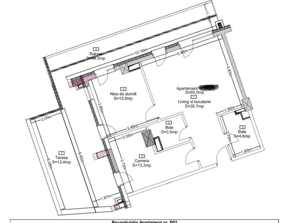
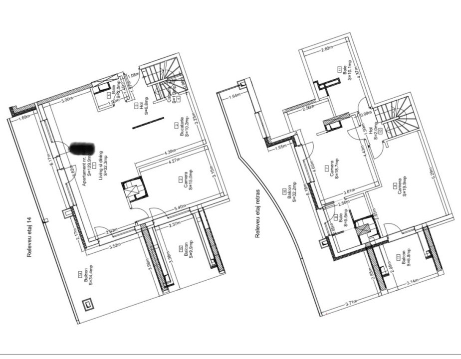
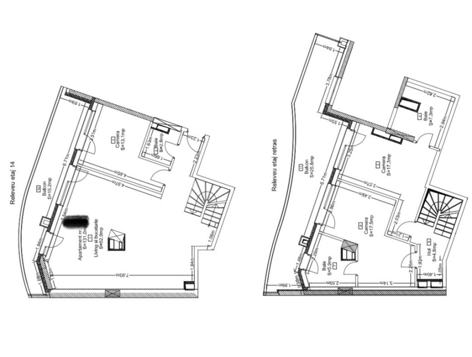
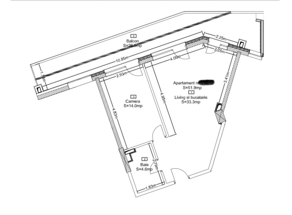
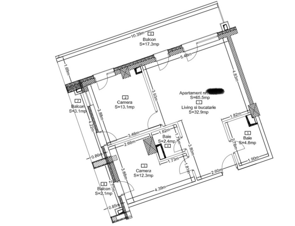
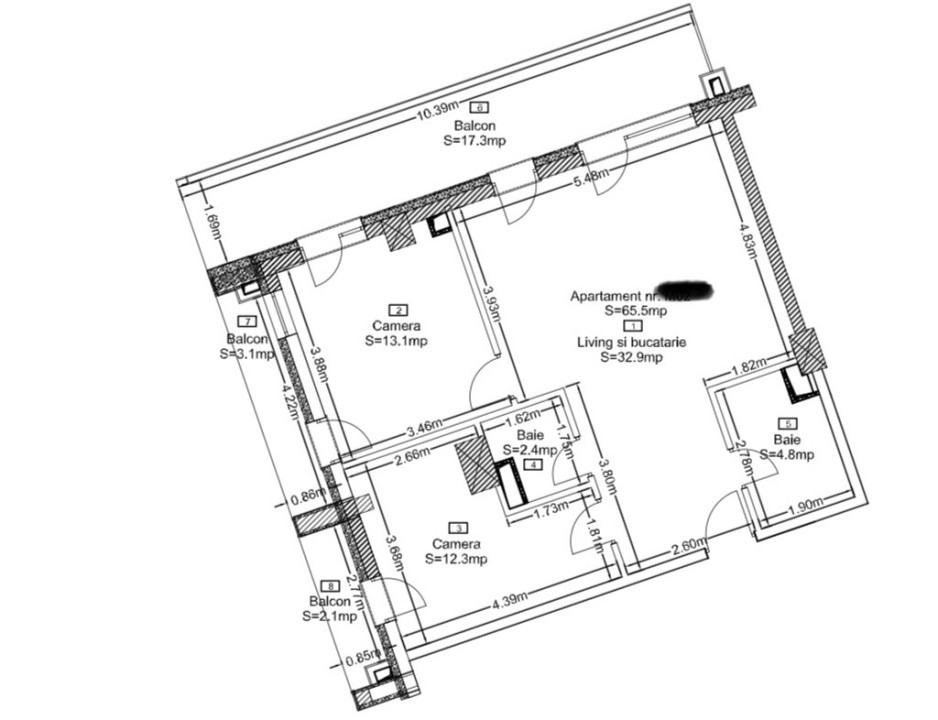
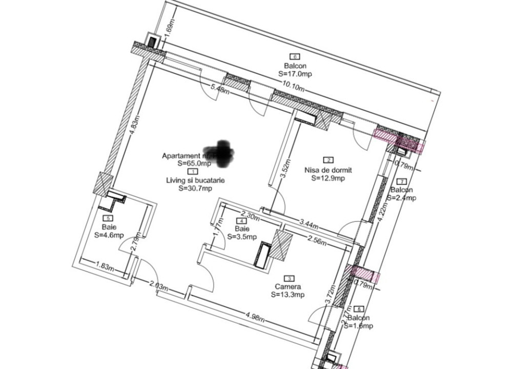
Apartamentele se afla la etaje diferite, cu suprafate utile de 51-193 mp si au diferite compartimentari.
Acestea se vand la stadiul de semifinisat, incalzire in pardoseala, usa antiefractie, ferestre tripan cu tamplarie de aluminiu.
Accesul este facil atat cu masina cat si cu mijloc de transport in comun (la 5 minute distanta de bloc), priveliste spre oras si padurea Faget, acces controlat si paza 24/7 pentru un plus de siguranta.
Datorita zonei si a imobilului premium in care se afla, acesta se recomanda atat pentru locuinta, cat si pentru investitie.
Pretul apartamentelor include TVA.
Pentru informatii suplimentare, programarea unei vizionari sau pentru a va prezenta oferta noastra completa, va rugam sa ne contactati.
ID EXTREN: P9958