










BLINGimobiliare ofera spre vanzare apartament cu 2 camere in zona Iulius Mall. Este pozitionat la etajul 4 al unui bloc cu regimul de inaltime P+5, finalizat in anul 2021.
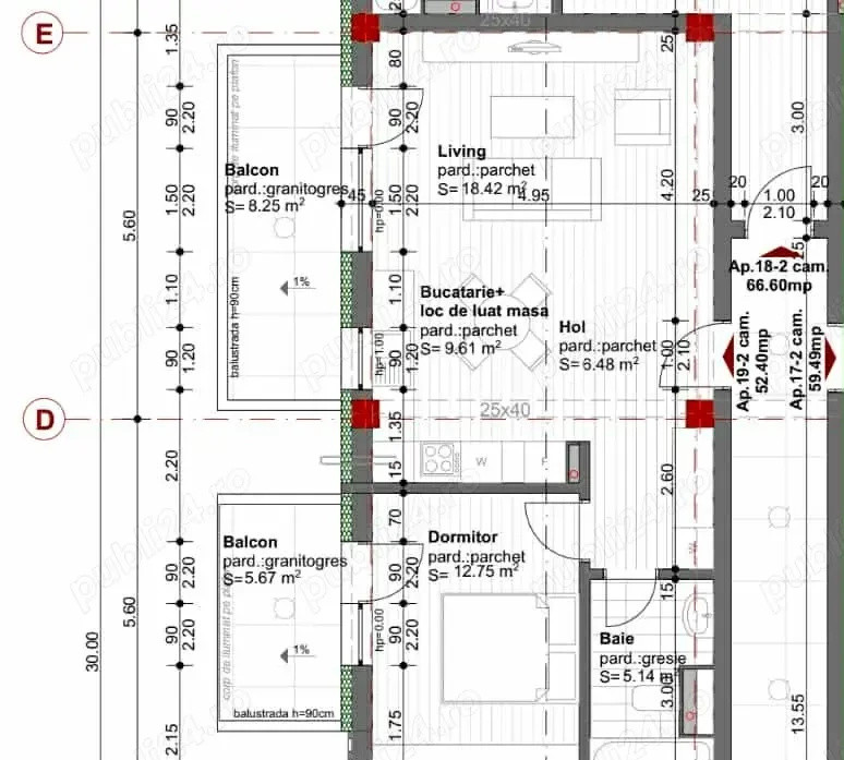
Compartimentarea este semidecomandata, suprafata utila este de 53 mp. si se prezinta astfel: hol, baie, bucatarie open space cu livingul, dormitor si 2 balcoane, unul de 8mp si unul de 6mp.
Este situat in zona foarte buna, aproape de statii de mijloc de transport in comun si magazine.
Apartamentul se vinde complet mobilat si utilat, finisajele fiind moderne si de calitate superioara.
Posibilitate inchiriere loc de parcare subteran.
Pentru mai multe detalii si pentru a programa o vizionare nu ezitati sa ne contactati. P12706