











Cu siguranta! Ansamblurile rezidentiale de top se remarca prin eleganta, confort si facilitati de inalta calitate. Acest ansamblu rezidential exceleaza prin arhitectura moderna si amenajarile spatioase, oferind un mediu prietenos pentru locuitori. Cu dotari premium, spatii verzi generoase, locatarii au parte de un stil de viata activ si relaxant.
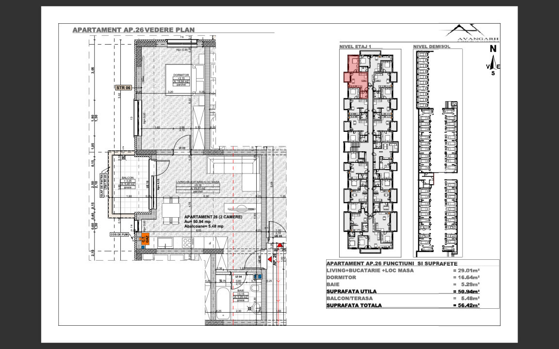
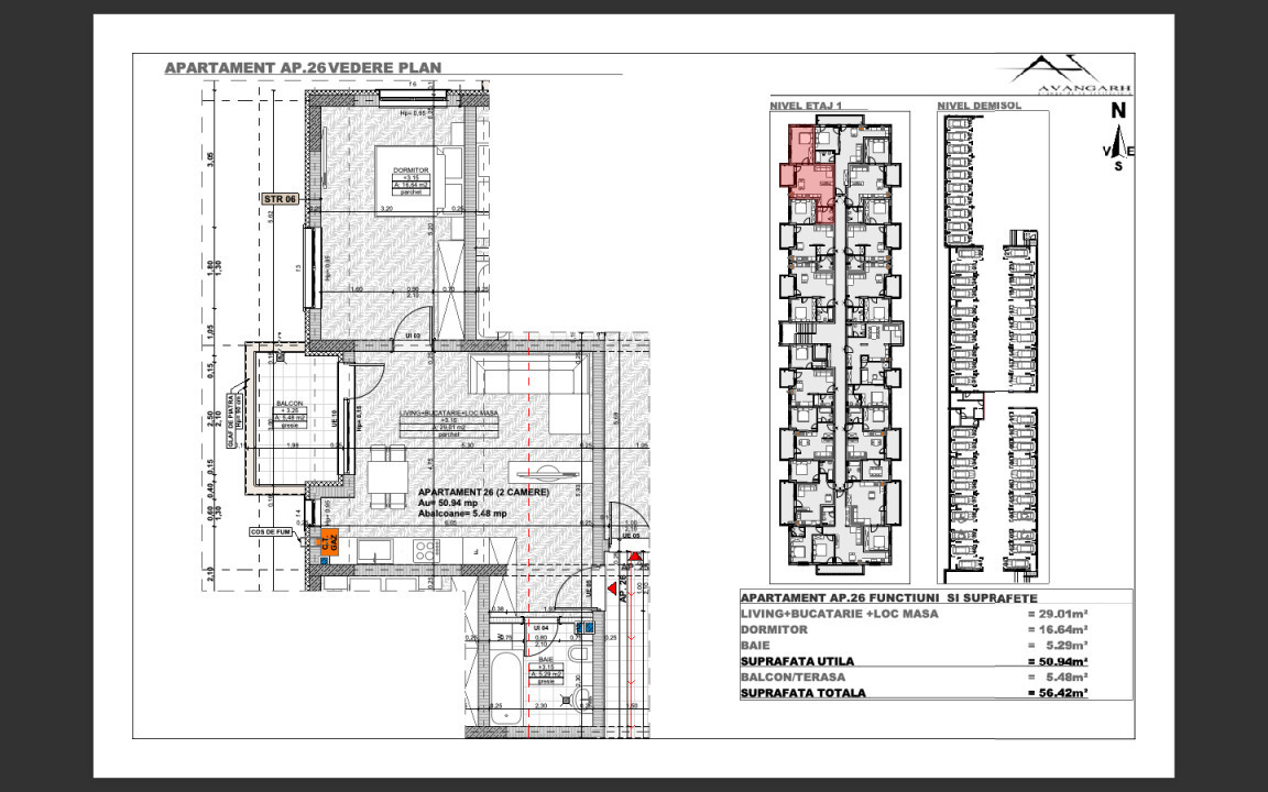
Apartamentul este poziționat la etajul 1 intr-un imobil cu regim de înălțime P+4+R, dispune de 2 camere si suprafață utila de 50,94 mp fiind compartimentat astfel: hol, living cu bucatarie open space, un dormitor, o baie, balcon și de 5,48 mp. Parcarile exterioare pornesc de la 5000 € iar parcarile subterane intre 6000€-8500€.
Se vinde la stadiul de semifinisat oferind posibilitatea noilor proprietari de a-și lasă amprenta proprie asupra spațiului. In plus, ansamblul rezidential beneficiaza de securitate avansata, asigurand o viata confortabila si lipsita de griji. Amplasat intr-o zona premium, cu acces facil la servicii, restaurante si centre comerciale, acest ansamblu atrage o comunitate selecta, care isi doreste sa traiasca intr-un ambient exclusivist si sigur.
Prețul de vânzare este 1280 euro cu TVA-ul de 5% inclus la care se adauga prețul pe suprafață balconului care va fi calculata astfel :
- la avans de 30 % sunt 650 euro mp;
- la avans de 50 % sunt 325 euro mp;
- la avans de 80 %terase sunt gratis;
Concluzionand, acest ansamblu rezidential de top ofera un stil de viata de lux, cu atentie la detalii si o atitudine proactiva in satisfacerea nevoilor locatarilor sai. Prețul de lista este valabil pana în luna septembrie 2023, după calculându-se prețul cu TVA-ul de 9% conform noilor reglementări. Blocul dispune de lift, finalizarea va avea loc în anul 2023 iar CF-ul se preconizează pe începutul anului 2024. Este o oportunitate extraordinara atât pentru investitie cât și pentru locuință, întrucât nu ezitați sa ne contactați pentru a programa o vizionare. ID extern : P2137