


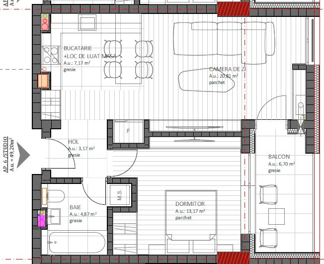
Ansamblurile rezidentiale de top se remarca prin eleganta, confort si facilitati de inalta calitate. Acest ansamblu rezidential exceleaza prin arhitectura moderna si amenajarile spatioase, oferind un mediu prietenos pentru locuitori. Cu dotari premium, spatii verzi generoase, locatarii au parte de un stil de viata activ si relaxant. Apartamentul are 2 camere , 49 mp plus balcon de 6 mp , etajul 6 și compartimentarea se prezintă astfel: hol, living cu bucatarie open space, dormitor, baie și un balcon. Garajul subteran se plătește Opțional la prețul de 12.000 euro. In plus, ansamblul rezidential beneficiaza de securitate avansata si servicii de concierge, asigurand o viata confortabila si lipsita de griji.
Apartamentele se vor preda la stadiul de finisat, nemobilat.
Amplasat intr-o zona premium, cu acces facil la servicii, restaurante si centre comerciale, acest ansamblu atrage o comunitate selecta, care isi doreste sa traiasca intr-un ambient exclusivist si sigur. Concluzionand, acest ansamblu rezidential de top ofera un stil de viata de lux, cu atentie la detalii si o atitudine proactiva in satisfacerea nevoilor locatarilor
ID: extern P2124