

Vă propunem spre vânzare un apartament modern cu 2 camere, situat în cel mai nou complex rezidențial din Florești, pe Strada Eroilor – o zonă excelentă, aflată în plină dezvoltare, cu acces rapid la toate facilitățile zilnice: magazine, stații de transport, școli, farmacii și centre comerciale. Apartament se predă la stadiul de semifinisat sau finisat la cerere ( contra cost )!!!
Imobilul este nou, finalizat în 2026, dotat cu lift modern și finisaje de calitate superioară, ideal atât pentru locuit, cât și pentru investiție.
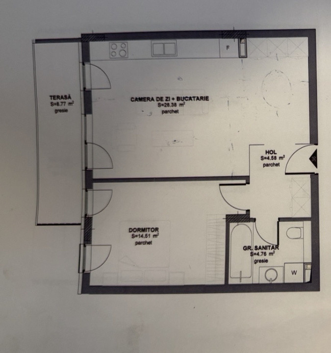
Suprafață utilă: 53 mp
Balcon spațios: 9 mp
Etaj: 3 din 5 (bloc cu lift)
Compartimentare practică și luminoasă:
• dormitor
• living open-space cu bucătărie
• baie
• hol
• balcon generos
Ideal pentru:
• locuință proprie
• cupluri/familii tinere
• investiție (închiriere rapidă, zonă foarte căutată)
Opțional: locuri de parcare exterioare sau subterane disponibile
Prețul afișat INCLUDE TVA
Pentru detalii suplimentare sau programarea unei vizionări, vă stăm cu drag la dispoziție!
Id extern :13223