







Apartament modern cu 2 camere 57mp, situat într-un ansamblu rezidențial nou, construit în anul 2023, cu acces privat securizat prin barieră.
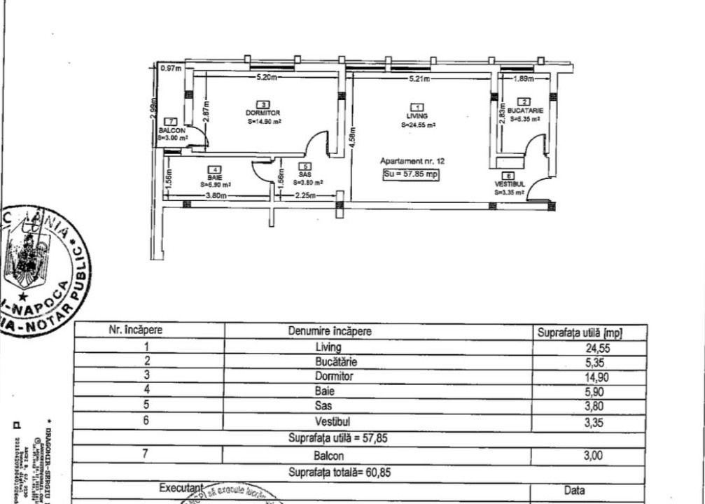
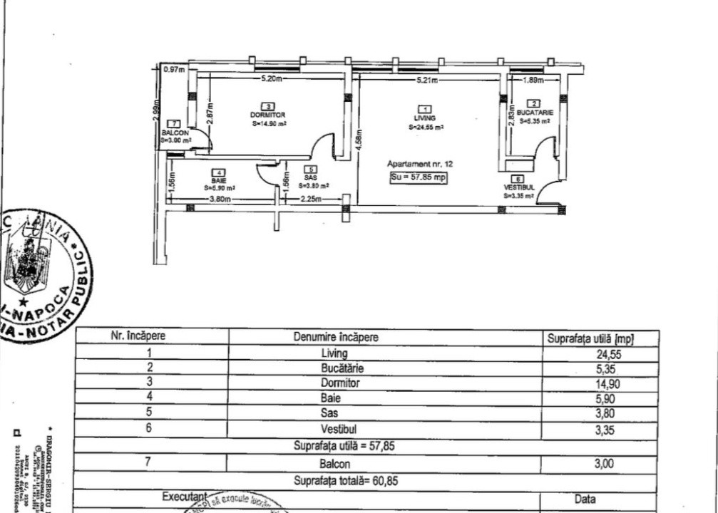
Apartamentul are o suprafață utilă de 57,85 mp, la care se adaugă un balcon de 3 mp, fiind compartimentat eficient astfel:
-dormitor
-living
-bucătărie decomandată
-baie cu geam
-balcon
Imobilul este complet finisat și dispune de încălzire prin calorifere, centrală termică proprie pe gaz, geamuri termopan tripan și finisaje de calitate. Bucătăria este placată cu gresie, iar livingul și dormitorul beneficiază de parchet și plinte. Baia este finisată cu gresie și faianță, este hidroizolată și dotată cu duș și vas de toaletă încastrat. Apartamentul este prevăzut cu prize și întrerupătoare montate, uși interioare albe, ușă de intrare antiefracție și pereți finisați cu lavabil alb.
Imobilul face parte dintr-un bloc cu regim de înălțime P+2 etaje + etaj retras, într-un ansamblu rezidențial aerisit. Parcările exterioare sunt disponibile opțional, contra cost.
Apartamentul este situat în zonă centrală, pe Str. Eroilor – zona Profi, având în imediata apropiere stații de transport în comun, magazine Profi și Penny, Piața Florești, complexul comercial Roka, precum și alte facilități de interes.
Pentru mai multe detalii sau pentru programarea unei vizionări, vă rugăm să ne contactați. ID EXTERN: 12875