







Apartament cu 2 camere, localizat pe strada Cetății, într-un ansamblu de blocuri noi, construit conform unor standarde înalte, cu materiale de calitate superioară și accent pe estetică și siguranță. Ansamblul beneficiază de supraveghere video, videointerfon și lift cu acces direct din garajul subteran.
Zona este excelentă din punct de vedere al accesibilității, cu stație de autobuz la capătul străzii și magazine alimentare precum Carrefour, Penny, Lidl și Profi, aflate la doar câteva minute distanță. De asemenea, în apropiere se regăsesc sală de fitness, farmacii, grădinițe și locuri de joacă pentru copii.
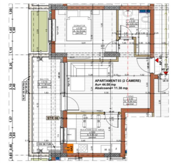
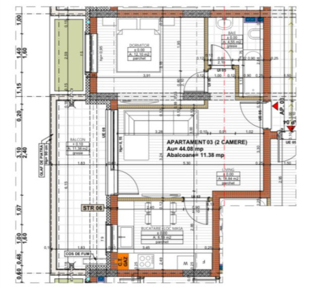
Apartamentul are o suprafață utilă de 44 mp și dispune de o terasă generoasă de 12 mp, cu orientare vestică. Este compartimentat astfel:
- hol
- living
- bucătărie închisă
- dormitor
- baie
- terasă
Proprietatea se vinde complet finisată, cu obiecte sanitare montate în baie și bucătăria complet mobilată și utilată cu electrocasnice noi, aflate în garanție: frigider, cuptor electric, aragaz, hotă și mașină de spălat rufe.
Confortul termic este asigurat de centrală termică proprie și sistem de încălzire prin pardoseală.
Apartamentul se vinde împreună cu un loc de parcare în garajul subteran, cu CF separat, la prețul de 9.000 euro.
ID: P12838