









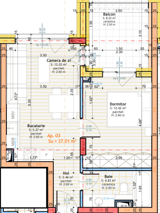
Bloc nou zona Tineretului! Apartament de 2 camere FINISAT!
- Suprafață utilă de 37.1mp si balcon 8.22mp forma dreptunghiulara, acoperit!
- Parcare subterana sau exterioara disponibila la alegere.
- Blocul cu lift!
Exterior & Construcție
• Acces Modern: Drum asfaltat până la imobil, cu căi de acces și parcări pavate
• Amenajări Excepționale: Zone verzi amenajate și parc de copii pentru momente de relaxare
• Materiale Premium: Construcție solidă din cărămidă și beton armat, cu izolație termică exterioară din polistiren
• Finisaje Decorative: Cărămidă aparentă și vopsea decorativă, pentru un aspect deosebit
• Confort Complet: Casa scării finalizată cu pardoseli elegante, pereți vopsiți, balustrade montate și lift
Interior & Finisaje
• Spațiu Inteligent: Compartimentare eficientă, cu opțiunea de a închide bucătăria pentru intimitate
• Finisaje de Calitate: Pereți tencuiți, gletuiți și vopsiți cu lavabilă albă
• Pardoseli Pregătite: Șapă semiuscata, incalzire in pardoseala
• Detalii Moderne: Geamuri termopan cu sticlă tripan
• Instalații Complete: Uși de intrare și usi interioare montate, sisteme electrice, sanitare și de gaz realizate
• Baie Modernă: Echipată cu obiecte sanitare de calitate, la gata
• Încălzire Eficientă: Sistem de încălzire în pardoseală, alimentat de o centrală termică în condensare
• Terase Funcționale: Balconul 8.22 mp, dotat cu hidroizolație și balustrada
Avantaje și Racordări
• Conectivitate Completă: Apartamentul se predă racordat la toate utilitățile: apă, gaz, curent și canalizare
• Locație Ideală: Situat într-o zonă liniștită, dar aproape de facilitățile orașului Cluj, perfect pentru cei ce doresc să îmbine confortul urban cu relaxarea unui ambient plăcut
• Optional se poate achizitiona un loc de parcare exterior la pretul de 5.600euro sau subteran la 9.520 euro.
Descoperiți un cămin modern, gândit în detaliu pentru a vă oferi calitatea și funcționalitatea de care aveți nevoie.
Un apartament ce îmbină estetica deosebită cu confortul absolut, situat într-un bloc nou ce se va finaliza în vara anului 2026.
Pozele sunt cu titlu din prezentare și fac parte din blocul nr 1 care este deja vândut in totalitate.
ID: P12446