
Ansamblul rezidențial se remarcă prin arhitectura modernă, spațiile generoase și facilitățile de calitate. Este ideal pentru cei care își doresc confort, siguranță și un stil de viață relaxat.
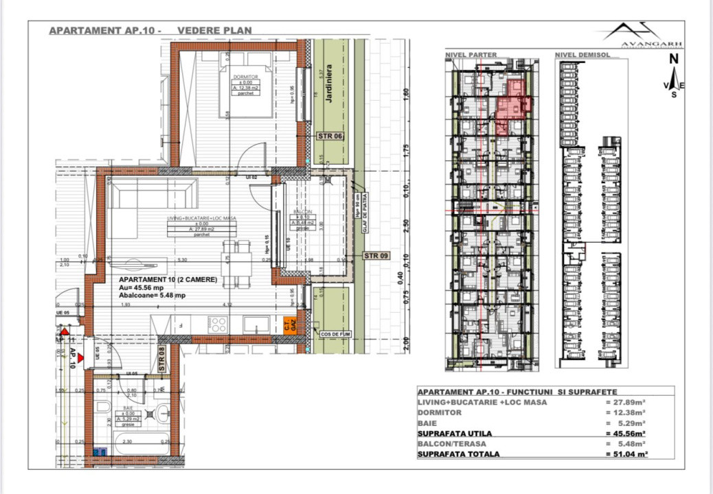
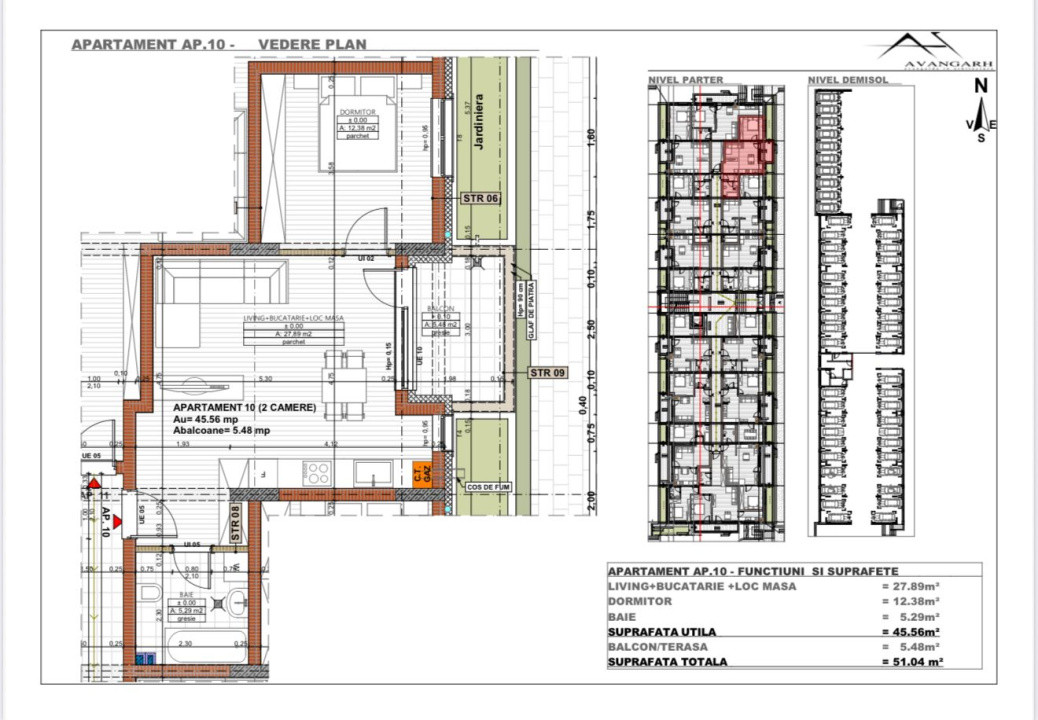
Apartamentul este situat la parterul unui imobil cu regim de înălțime P+4+R, are 2 camere și o suprafață utilă de 45,56 mp, fiind compartimentat astfel: hol, living , bucătărie ,dormitor, baie și balcon de 5,48 mp.
Se vinde la stadiul de semifinisat, oferind noilor proprietari libertatea de a-și personaliza spațiul după propriul gust.
Parcări:
• Subterane 12.500 € cu TVA inclus
Ansamblul oferă securitate avansată, spații verzi și acces facil către restaurante, magazine și centre comerciale.
Termene:
• Finalizare: 2026
• CF estimat: începutul anului 2026
O alegere excelentă atât pentru investiție, cât și pentru locuință personală.
Pentru mai multe detalii sau pentru a programa o vizionare, nu ezitați să ne contactați.
ID : P12064