
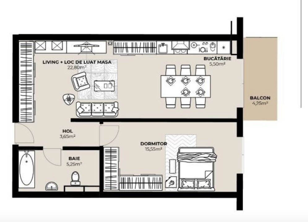
Bling Imobiliare ofera spre vanzare apartament cu 2 camere in ansamblu rezidential nou in Marasti. Apartamentul se preda la stadiul de semifinisat cu sapa autonivelanta , pereti gletuiti , instalatii electrice si sanitare trase la pozitie , geamuri tripan. Apartamentul este poziționat la etajul 6 al unui bloc cu regimul de înălțime D+P+10 etaje , cu termenul de finalizare in anul 2026. Compartimentarea este semidecomandata, suprafata utila este de 52,75 mp si se prezinta astfel: hol, baie, bucatarie open space cu livingul, 1 dormitor si balcon de 4 mp.Este situat in zona foarte buna, aproape de statii de mijloc de transport in comun si magazine.
Pentru mai multe detalii si pentru a programa o vizionare nu ezitati sa ne contactati. ID EXTERN: P10339