








Îți prezentăm un apartament modern cu 2 camere, situat într-o zonă liniștită din Apahida, ideal pentru locuință personală sau investiție sigură.
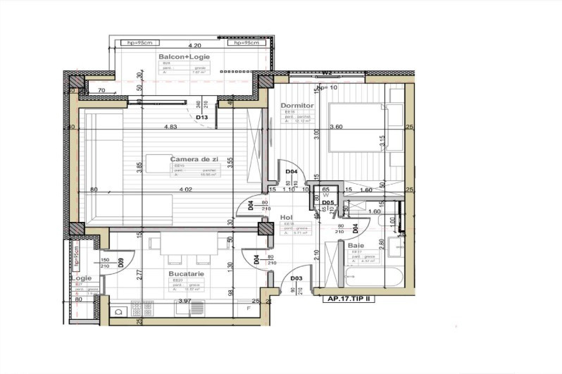
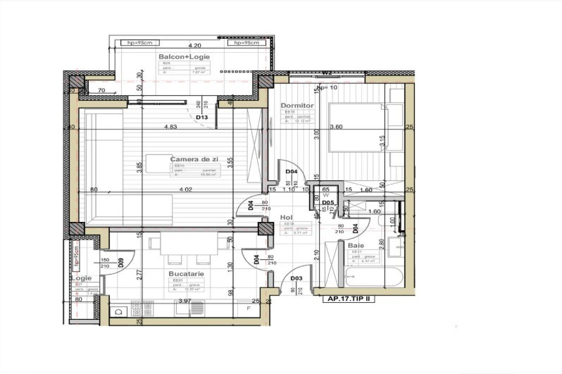
Apartamentul are o suprafață utilă de 52 mp și se află la etajul 2 al unui bloc nou, aflat în curs de finalizare.
Compartimentarea este practică și luminoasă, iar confortul termic este asigurat de încălzirea în pardoseală și centrala termică proprie. Locuința beneficiază și de o terasă spațioasă perfectă pentru relaxare, precum și de un spațiu de depozitare, un detaliu util pentru orice familie.
Ansamblul rezidențial este format din două blocuri de doar 2 etaje, ceea ce oferă intimitate și liniște. Finalizarea lucrărilor este programată pentru sfârșitul anului, iar CF-urile vor fi disponibile în februarie.
Se poate achiziționa parcare subterană la prețul de 7.000 € sau exterioară la 5.000 €.
Prețul afișat include TVA. ID:P11580
O alegere excelentă pentru cei care caută un apartament confortabil, într-o zonă aerisită, cu acces rapid către Cluj-Napoca.