

Va propunem spre vanzare acest apartament de o camera situat intr-un ansamblu rezidential nou construit in zona Tineretului.
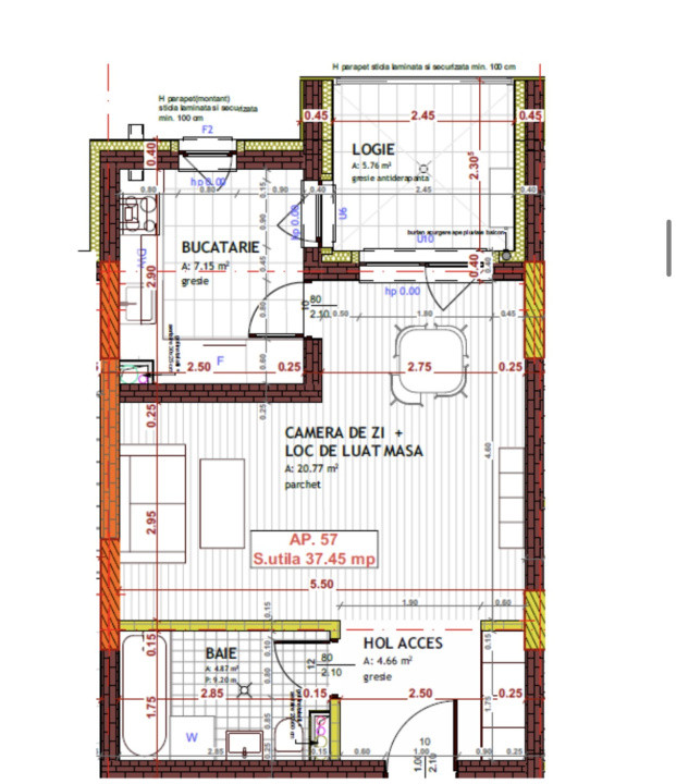
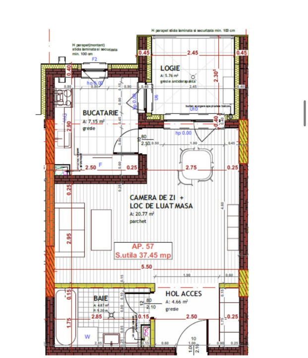
Apartamentul dispune de o suprafata utila de 37.45 mp plus un balcon de 5.76 mp, compartimentarea este semidecomandata si se prezinta astfel: hol, camera de zi plus loc de luat masa, bucatarie separata, baie si un balcon tip logie.
Se va preda la stadiul de semifinisat, dispune de centrala termica proprie si sistem de incalzire prin pardoseala, geamuri tripan, usa antiefractie.
Proiectul este in stadiu de constructie, primul imobil are termen de finalizare estimat pentru sfarsitul anului 2025. Constructia are structura de beton armat ce rezista la un cutremur de 9 grade, iar compartimentarile interioare sunt din caramida, atat intre apartamente cat si intre camere dispunand de o izolatie fonica si termica foarte buna.
Separat se poate achizitiona parcare exterioara la pretul de 4000 euro sau parcare subterana la pretul de 7000 euro.
Pentru mai multe informatii nu ezitati sa ne contactati. ID Extern: P9709