




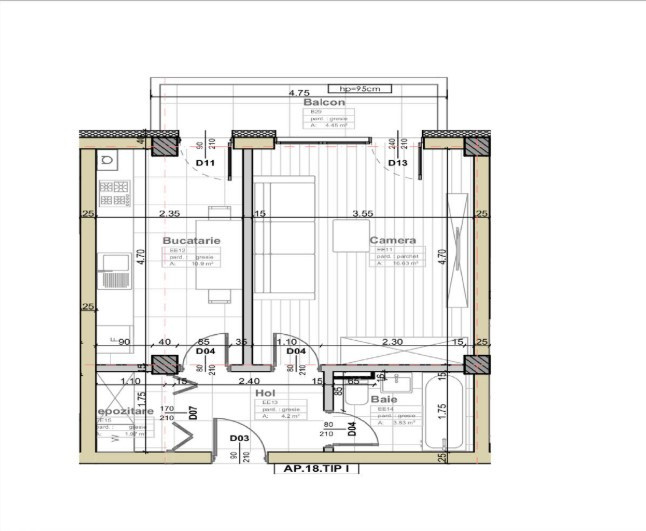
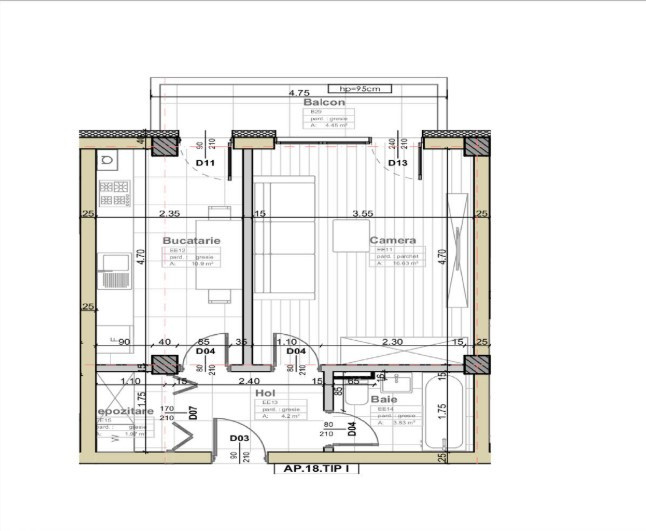
Îți prezentăm un apartament modern cu o camera, situat într-o zonă liniștită din Apahida, ideal pentru locuință personală sau investiție sigură.
Apartamentul are o suprafață utilă de 37.5 mp și se află la etajul doi al unui bloc nou, aflat în curs de finalizare.
Compartimentarea este practică și luminoasă, iar confortul termic este asigurat de încălzirea în pardoseală și centrala termică proprie. Locuința beneficiază și de o terasă spațioasă perfectă pentru relaxare, precum și de un spațiu de depozitare, un detaliu util pentru orice familie.
Ansamblul rezidențial este format din două blocuri de doar 2 etaje, ceea ce oferă intimitate și liniște. Finalizarea lucrărilor este programată pentru sfârșitul anului, iar CF-urile vor fi disponibile în februarie.
Se poate achiziționa parcare subterană la prețul de 7.000 € sau exterioară la 5.000 €.
Prețul afișat nu include TVA. ID:P11581
O alegere excelentă pentru cei care caută un apartament confortabil, într-o zonă aerisită, cu acces rapid către Cluj-Napoca.