Bling Imobiliare utilizează fişiere de tip cookie pentru a personaliza și îmbunătăți experiența ta pe Website-ul nostru. Înainte de a continua navigarea pe Website-ul nostru te rugăm să aloci timpul necesar pentru a citi și înțelege conținutul Politicii de Cookie. Prin continuarea navigării pe Website-ul nostru confirmi acceptarea utilizării fişierelor de tip cookie conform Politicii de Cookie.

Apartamete cu 2,3 si 4 camere, zona Tautiului

Floresti

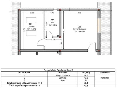
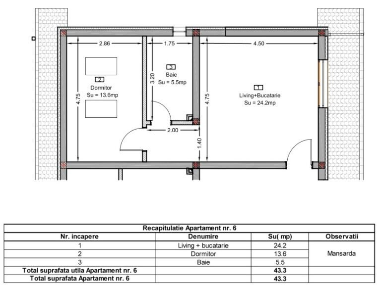
BLING Imobiliare va ofera spre vanzare 37 apartamente intr-un Ansamblu cu accesul auto, cu sistem de iluminare nocturn. Finisajele imobilului sunt moderne si de calitate superioara: balustrade la balcoane din sticla securizata, incalzire in pardoseala, tamplarie PVC, usile de la intrare metalice. Apartamente disponibile sut cu 2, 3 si 4 camere, suprafete intre 43,3 mp si 79 mp cu terase intre 5,83 mp si 9 mp Spatiile verzi au un concept peisagistic deosebit. Parcari subterane disponibile la un pret de 7000 euro iar parcari exterioare disponibile la un pret de 4500 euro. Locatia este in apropierea statiilor de autobuz, scoala, gradinita, magazine alimentare. Pentru mai multe informatii sau pentru a programa o vizionare va stam la dispozitie!